< Ga terug

Hofstraat 71C

(3-kamer appartement), Kampen

€ 1109,24 p.m.

Onder optie
Woonoppervlakte
51 m²
Aantal kamers
3
Aantal slaapkamers
2
Woonlagen
2


Omschrijving

Per 1 februari 2026 is dit appartement beschikbaar aan de Hofstraat 71, midden in het centrum van Kampen. De Hanzestad heeft een sfeervol centrum met een ruim aanbod qua winkels, boetiekjes en horecagelegenheden. De stad beschikt over vele monumentale panden en stadspoorten. De stad is gelegen aan het water en met de Stadsbrug ben je zo bij het station. Het 'Kamperlijntje' zet je in 10 minuten af in Zwolle.

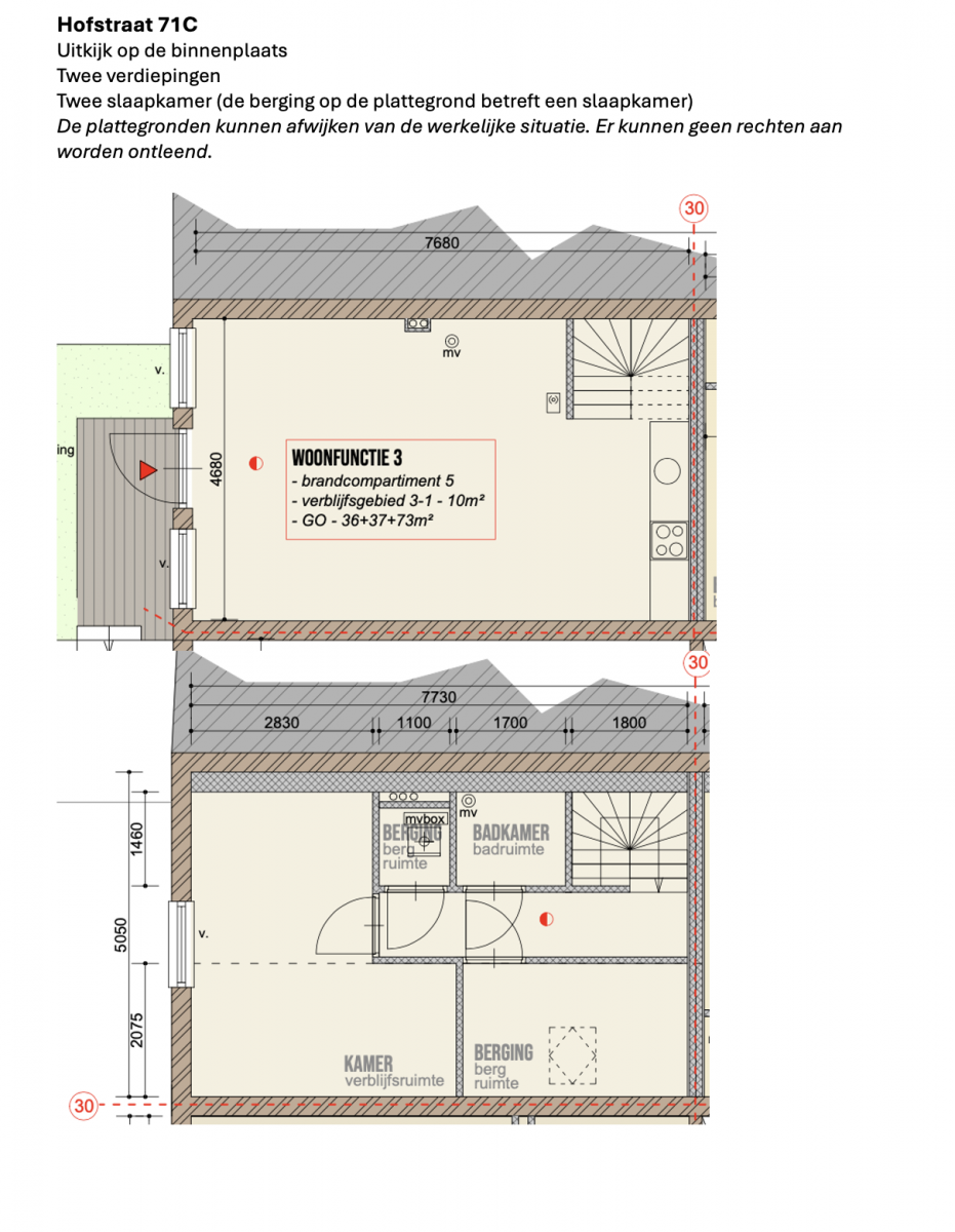
Het appartement bevindt zich op de eerste verdieping die te bereiken is via een gemeenschappelijke opgang, waar een geenschappelijke fietsenberging aanwezig is en een gezamelijk dakterras.

Bij binnenkomst tref je de ruime woonkamer met open keuken. De keuken is voorzien van koelkast met vriesvak, inductiekookplaat en afzuigkap. Op de tweede verdieping van het appartement vindt je de ruime slaapkamer, een kleine slaapkamer en badkamer voorzien van wastafel, douchecabine en wasmachineaansluiting. Er is een separaat toilet aanwezig. 


HUURPRIJS

Huurprijs € 1109,24
Voorschot servicekosten € 50,00
Voorschot G/W/E € 120,00
Totaal € 1279,24


INKOMENSEIS
De inkomenseis voor deze woning is 3 keer de kale huur aan bruto inkomen. 

BETALING
De waarborgsom voor het huren van deze woonruimte staat gelijk aan een maand huur en bij het tekenen van het contract dient de eerste maandhuur vooruitbetaald te worden.

GEÏNTERESSEERD?
Maak gratis een account aan op onze website om te reageren. De bezichtingen worden toegewezen via willekeurige loting. Je ontvangt bericht of je bent ingeloot voor een bezichtiging.

HUIS VAN VERHUUR
Huis van verhuur biedt transparantie in de woonbemiddeling tussen huurder en verhuurder. Met een groot aanbod in huurwoningen zoals nette kamers, comfortabele studio's, ruime appartementen en royale vrijstaande woningen op toplocaties in midden- en noord Nederland is Huis van Verhuur de ideale speler voor het huren van woonruimte.


Details

Status: Beschikbaar
Wijk: Centrum
Categorie: Appartement
Bestaand / nieuwbouw: Bestaand
Huurprijs: € 1109,24
Woonoppervlakte: 51 m²
Aantal kamers: 3
Aantal slaapkamers: 2
Woonlagen: 2
Ligging: Bovenwoning
Keuken: Eigen
Douche: Eigen
Toilet: Eigen
Buiten: Eigen
Huisdieren: Niet toegestaan
Stellen: Toegestaan
Aanvaarding: Per direct
Min. huurperiode: 12 Maanden
Energielabel: A+
Bouwjaar:

Copyright © 2026. All rights reserved. Voorwaarden | Privacy Policy